Сведения о недвижимом имуществе Сахалинского филиала, которое может быть сдано в аренду:
Морской терминал Поронайск
• целевое назначение объекта: вспомогательный;
• вид государственной регистрации права: хозяйственное ведение;
• дата и номер государственной регистрации права: от 14.02.2008 № 65-65-07/001/2008-076;
• кадастровый номер объекта: 65:17:0000000:288;
• местонахождение объекта: г. Поронайск, р-н Поронайский, Сахалинская область, морской порт Корсаков;
• технические характеристики объекта:
|
Год постройки |
1975 |
|
Год последней реконструкции |
Не проводилась |
| Год последнего капитального ремонта | Не проводился |
| Длина объекта | 60,5 м |
|
Ширина объекта |
3,8 м |
|
Площадь объекта |
229,9 кв. м |
|
Тип конструкции объекта |
Причальная эстакада, высокий свайный ростверк. |
|
Проектная глубина у кордона причала |
3,55 м |
|
Фактическая глубина у кордона причала |
от 0,3 до 1 м |
|
Подключение объекта к сетям энергоснабжения, водоснабжения, теплоснабжения, канализации и связи |
Отсутствует |
| Дополнительное оборудование на причале | Отсутствует |
|
|
|
|
• первоначальная / балансовая (справедливая) стоимость объекта по состоянию на 31.03.2026 составляет: 70 000 / 70 000 руб.;
• размер стоимости права пользования объектом по договору аренды будет установлен на уровне не ниже стоимости, определенной по результатам оценки независимым оценщиком.
• целевое назначение объекта: пассажирский;
• вид государственной регистрации права: хозяйственное ведение;
• дата и номер государственной регистрации права: от 14.02.2008 № 65-65-07/001/2008-074;
• кадастровый номер объекта: 65:17:0000000:166;
• местонахождение объекта: г. Поронайск, р-н Поронайский, Сахалинская область, морской порт Корсаков;
• технические характеристики объекта:
|
Год постройки |
1975 |
|
Год последней реконструкции |
Не проводилась |
| Год последнего капитального ремонта | Не проводился |
| Длина объекта | 14,1 м |
|
Ширина объекта |
7,0 м |
|
Площадь объекта |
98,7 кв. м |
|
Тип конструкции объекта |
Причальная эстакада, высокий свайный ростверк. |
|
Проектная глубина у кордона причала |
2,75 м |
|
Фактическая глубина у кордона причала |
2,4 м |
|
Подключение объекта к сетям энергоснабжения, водоснабжения, теплоснабжения, канализации и связи |
Отсутствует |
| Дополнительное оборудование на причале | Скоб-трап в количестве 1 шт. |
|
|
|
|
• первоначальная / балансовая (справедливая) стоимость объекта по состоянию на 31.03.2026 составляет: 63 200 / 63 200 руб.;
• размер стоимости права пользования объектом по договору аренды будет установлен на уровне не ниже стоимости, определенной по результатам оценки независимым оценщиком.
• целевое назначение объекта: пассажирский;
• вид государственной регистрации права: хозяйственное ведение;
• дата и номер государственной регистрации права: от 14.02.2008 № 65-65-07/001/2008-078;
• кадастровый номер объекта: 65:17:0000000:124;
• местонахождение объекта: г. Поронайск, р-н Поронайский, Сахалинская область, морской порт Корсаков;
• технические характеристики объекта:
|
Год постройки |
1975 |
|
Год последней реконструкции |
Не проводилась |
|
Год последнего капитального ремонта |
Не проводился |
| Длина объекта | 22,5 м |
|
Ширина объекта |
8,7 м |
|
Площадь объекта |
195,75 кв. м |
|
Тип конструкции объекта |
Причальная эстакада, высокий свайный ростверк. |
|
Проектная глубина у кордона причала |
2,75 м |
|
Фактическая глубина у кордона причала |
2,1 м |
|
Подключение объекта к сетям энергоснабжения, водоснабжения, теплоснабжения и канализации |
Отсутствует |
| Дополнительное оборудование на причале | Отсутствует |
|
|
|
|
|
• первоначальная / балансовая (справедливая) стоимость объекта по состоянию на 31.03.2026 составляет: 82 000/82 000 руб.;
• размер стоимости права пользования объектом по договору аренды будет установлен на уровне не ниже стоимости, определенной по результатам оценки независимым оценщиком.
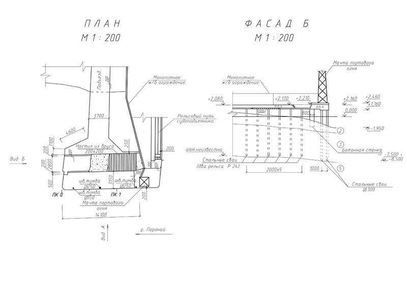
• целевое назначение объекта: судоремонтный;
• вид государственной регистрации права: хозяйственное ведение;
• дата и номер государственной регистрации права: от 14.02.2008 № 65-65-07/001/2008-077;
• кадастровый номер объекта: 65:17:0000000:163;
• местонахождение объекта: г. Поронайск, р-н Поронайский, Сахалинская область, морской порт Корсаков;
• технические характеристики объекта:
|
год постройки |
1975 |
|
год последней реконструкции |
не проводилась |
|
год капитального ремонта |
не проводился |
| длина объекта | 59,0 м |
|
ширина объекта |
16,1 м |
|
площадь объекта |
949,9 м |
|
тип конструкции объекта |
Сооружение представляет собой два узких пирса в виде причальной эстакады по типу высокий свайный ростверк. |
|
проектная глубина у кордона причала |
3,55 м |
|
фактическая глубина у кордона причала |
от 0,5 до 1 м |
|
подключение объекта к сетям энергоснабжения, водоснабжения, теплоснабжения, канализации и связи |
отсутствует |
| дополнительное оборудование на причале |
Прикордонные крановые пути для размещения кранов типа «Ганц» шириной 10,5 м, длиной 52,81 м, тип рельса Р50. На объекте располагается объект «Портовый огонь», который не сдается в аренду |
|
|
|
|
|
• первоначальная / балансовая (справедливая) стоимость объекта по состоянию на 31.03.2026 составляет: 55 500 руб. / 55 500 руб.;
• размер стоимости права пользования объектом по договору аренды будет установлен на уровне не ниже стоимости, определенной по результатам оценки независимым оценщиком.
• целевое назначение объекта: причал № 1 – переработка навалочных грузов (гравий), причал № 2 – ремонт судов;
• вид государственной регистрации права: хозяйственное ведение;
• дата и номер государственной регистрации права: от 18.05.2010 № 65-65-07/002/2010-414;
• кадастровый номер объекта: 65:17:0000000:167;
• местонахождение объекта: г. Поронайск, р-н Поронайский, Сахалинская область, морской порт Корсаков;
• технические характеристики объекта:
|
год постройки: |
|
|
год последней реконструкции: |
|
| длина объекта | 230,6 м |
|
ширина объекта: |
|
|
площадь объекта |
4 294,20 кв. м |
|
тип конструкции объекта |
Причал № 1
Тип сооружения: вертикальная стенка. Больверк из стального шпунта. Причал № 2 Тип сооружения: эстакада. Высокий свайный ростверк из деревянных свай диаметром 250-300 мм.Верхнее строение: железобетон. Отбойные устройства: подвесные кранцы из бывших в употреблении автопокрышек автомобилей типа «БелАЗ» в количестве 23 ед. с шагом 2-4 м. Швартовые устройства: стальные трубы диаметром от 152 до 325 мм в количестве 10 шт. Внутренние полости стальных труб заполнены бетоном. Колесоотбойный брус: железобетон сечением 250 х 250 мм, длиной 76,36 м
|
|
проектная глубина у кордона причала: |
|
|
фактическая глубина у кордона причала: |
|
|
подключение объекта к сетям энергоснабжения |
Причал №1: подключение к сетям электроснабжения ПАО «Сахалинэнерго». |
|
подключение объекта к сетям водоснабжения, теплоснабжения, канализации и связи |
отсутствует |
| дополнительное оборудование на причале |
На причале № 1: - электрические колонки с напряжением 380 В и максимальной потребляемой мощностью 119,7 кВт на каждую в количестве 2 шт.; - прикордонные крановые пути для размещения кранов типа «Ганц» шириной 10,5 м и типом рельса Р-50 длиной 130,5 м. На причале № 2: - склад для хранения газосварочного оборудования – 1 шт.; - канализационный колодец (выведен из эксплуатации) - 1 шт. |
|
![]() |
|
|
|
![]() |
|
|
|
|
• первоначальная / балансовая (справедливая) стоимость объекта по состоянию на 31.03.2026 составляет: 3 390 800,00 руб. / 3 390 800,00 руб.;
• размер стоимости права пользования объектом по договору аренды будет установлен на уровне не ниже стоимости, определенной по результатам оценки независимым оценщиком.
Морской порт Шахтерск
Морской терминал Бошняково
|
=> |
извещение о проведении аукциона |
• целевое назначение объекта: отстой судов портофлота;
• вид государственной регистрации права: хозяйственное ведение;
• дата и номер государственной регистрации права: от 11.02.2007 № 65-65-01/022/2007-080;
• кадастровый номер объекта: 65:14:0000004:771;
• местонахождение объекта: сооружение 1А/4, ул. Флотская, с. Бошняково, муниципальный округ Углегорский, Сахалинская область, Российская Федерация, морской порт Шахтерск;
• основные технические характеристики объекта:
|
год постройки |
1944 |
|
год последней реконструкции |
не проводилась |
|
год последнего капитального ремонта |
не проводился |
| длина объекта | 95 м |
| ширина объекта | 7 м |
|
площадь объекта |
665 кв. м |
|
тип конструкции объекта |
Сооружение гравитационного типа в виде монолитной бетонной стенки трапецеидального профиля. |
|
проектная глубина у кордона причала |
3,2 м |
|
фактическая глубина у кордона причала |
от 1 до 3 м |
|
подключение объекта к сетям энергоснабжения |
Подключение к сетям электроснабжения ПАО «Сахалинэнерго». |
|
подключение объекта к сетям водоснабжения, теплоснабжения, канализации и связи |
отсутствует |
|
дополнительное оборудование на причале |
Крановые колонки электропитания типа ЭПН-2-380 в количестве 2 ед. |
![]() |
![]() |
![]() |
![]() |
![]() |
![]() |
• первоначальная / балансовая (справедливая) стоимость объекта по состоянию на 31.03.2026 составляет: 60 133 000,00 / 60 133 000,00 руб.;
• размер стоимости права пользования объектом по договору аренды будет установлен на уровне не ниже стоимости, определенной по результатам оценки независимым оценщиком.
|
=> |
извещение о проведении аукциона |
• целевое назначение объекта: перевалка навалочных и генеральных грузов;
• вид государственной регистрации права: хозяйственное ведение;
• дата и номер государственной регистрации права: от 21.02.2007 № 65-65-01/022/2007-082;
• кадастровый номер объекта: 65:14:0000004:770;
• местонахождение объекта: сооружение 1А/5, ул. Флотская, с. Бошняково, муниципальный округ Углегорский, Сахалинская область, Российская Федерация, морской порт Шахтерск;
• основные технические характеристики объекта:
|
год постройки |
1944 |
|
год последней реконструкции |
не проводилась |
|
год последнего капитального ремонта |
не проводился |
| длина объекта | 160 м |
| ширина объекта | 7 м |
|
площадь объекта |
1 120 кв. м |
|
тип конструкции объекта |
Сооружение гравитационного типа в виде монолитной бетонной стенки трапецеидального профиля. |
|
проектная глубина у кордона причала |
3,2 м |
|
фактическая глубина у кордона причала |
от 1,5 до 3,1 м |
|
подключение объекта к сетям энергоснабжения |
Подключение к сетям электроснабжения ПАО «Сахалинэнерго». |
|
подключение объекта к сетям водоснабжения, теплоснабжения, канализации и связи |
отсутствует |
|
дополнительное оборудование на причале |
Крановые колонки электропитания типа ЭПН-2-380 в количестве 3 ед. |
![]() |
![]() |
![]() |
![]() |
![]() |
![]() |
• первоначальная / балансовая (справедливая) стоимость объекта по состоянию на 31.03.2026 составляет: 116 860 000,00 / 116 860 000,00 руб.;
• размер стоимости права пользования объектом по договору аренды будет установлен на уровне не ниже стоимости, определенной по результатам оценки независимым оценщиком.
|
=> |
извещение о проведении аукциона |
• целевое назначение объекта: перевалка навалочных и генеральных грузов;
• вид государственной регистрации права: хозяйственное ведение;
• дата и номер государственной регистрации права: от 11.02.2007 № 65-65-01/022/2007-074;
• кадастровый номер объекта: 65:14:0000004:776;
• местонахождение объекта: сооружение 1А/3, ул. Флотская, с. Бошняково, муниципальный округ Углегорский, Сахалинская область, Российская Федерация, морской порт Шахтерск;
• основные технические характеристики объекта:
|
год постройки |
1944 |
|
год последней реконструкции |
не проводилась |
|
год последнего капитального ремонта |
1967 |
| длина объекта | 140 м |
| ширина объекта | 6,5 м |
|
площадь объекта |
910 кв. м |
|
тип конструкции объекта |
Сооружение гравитационного типа в виде монолитной бетонной стенки трапецеидального профиля. |
|
проектная глубина у кордона причала |
3,2 м |
|
фактическая глубина у кордона причала |
от 2,3 до 3,1 м |
|
подключение объекта к сетям энергоснабжения |
Подключение к сетям электроснабжения ПАО «Сахалинэнерго». |
|
подключение объекта к сетям водоснабжения, теплоснабжения, канализации и связи |
отсутствует |
|
дополнительное оборудование |
Крановые колонки электропитания типа ЭПН-2-380 в количестве 2 ед. |
![]() |
![]() |
![]() |
![]() |
![]() |
![]() |
• первоначальная / балансовая (справедливая) стоимость объекта по состоянию на 31.03.2026 составляет: 85 271 000,00 / 85 271 000,00 руб.;
• размер стоимости права пользования объектом по договору аренды будет установлен на уровне не ниже стоимости, определенной по результатам оценки независимым оценщиком.
|
=> |
извещение о проведении аукциона |
• целевое назначение объекта: установка и перемещение портальных кранов для производства грузовых работ;
• вид государственной регистрации права: хозяйственное ведение;
• дата и номер государственной регистрации права: от 11.02.2007 № 65-65-01/022/2007-088;
• кадастровый номер объекта: 65:14:0000004:775;
• местонахождение объекта: сооружение 1А/2, ул. Флотская, с. Бошняково, муниципальный округ Углегорский, Сахалинская область, Российская Федерация, морской порт Шахтерск;
• основные технические характеристики объекта:
|
год постройки |
1988 |
|
год последней реконструкции |
не проводилась |
|
год последнего капитального ремонта |
не проводился |
| длина объекта | 75 м |
| ширина колеи | 10,50 м |
|
тип конструкции объекта |
Рельсы типа Р-65, установленные на бетонном основании |
|
подключение объекта к сетям энергоснабжения, водоснабжения, теплоснабжения, канализации и связи |
отсутствует |
|
дополнительное оборудование |
отсутствует |
![]() |
![]() |
![]() |
![]() |
![]() |
• первоначальная / балансовая (справедливая) стоимость объекта по состоянию на 31.03.2026 составляет: 2 723 000,00 / 2 723 000,00 руб.;
• размер стоимости права пользования объектом по договору аренды будет установлен на уровне не ниже стоимости, определенной по результатам оценки независимым оценщиком.
|
=> |
извещение о проведении аукциона |
• целевое назначение объекта: защита акватории от волнения;
• вид государственной регистрации права: хозяйственное ведение;
• дата и номер государственной регистрации права: от 11.02.2007 № 65-65-01/029/2010-115;
• кадастровый номер объекта: 65:14:0000004:773;
• местонахождение объекта: сооружение 1А/10, ул. Флотская, с. Бошняково, муниципальный округ Углегорский, Сахалинская область, Российская Федерация, морской порт Шахтерск;
• основные технические характеристики объекта:
|
год постройки |
1944 |
|
год последней реконструкции |
не проводилась |
|
год последнего капитального ремонта |
1969 |
| длина объекта | 120,4 м |
| ширина объекта | 5 м |
|
площадь объекта |
602 кв. м |
|
тип конструкции объекта |
Сооружение гравитационного типа в виде монолитной бетонной стенки, установленной на каменную постель. В головной части выполнена наброска из бетонных массивов массой 15 т. |
|
отметка верха сооружения |
+2,196÷+2,395 м |
|
подключение объекта к сетям энергоснабжения, водоснабжения, теплоснабжения, канализации и связи |
отсутствует |
|
дополнительное оборудование |
На объекте располагается объект «Портовый огонь», который не сдается в аренду |
![]() |
![]() |
![]() |
![]() |
![]() |
• первоначальная / балансовая (справедливая) стоимость объекта по состоянию на 31.03.2026 составляет: 244 797 000,00 / 244 797 000,00 руб.;
• размер стоимости права пользования объектом по договору аренды будет установлен на уровне не ниже стоимости, определенной по результатам оценки независимым оценщиком.
|
=> |
извещение о проведении аукциона |
• целевое назначение объекта: защита акватории от волнения;
• вид государственной регистрации права: хозяйственное ведение;
• дата и номер государственной регистрации права: от 11.02.2007 № 65-65-01/022/2010-114;
• кадастровый номер объекта: 65:14:0000004:777;
• местонахождение объекта: сооружение 1А/8, ул. Флотская, с. Бошняково, муниципальный округ Углегорский, Сахалинская область, Российская Федерация, морской порт Шахтерск;
• основные технические характеристики объекта:
|
год постройки |
1944 |
|
год последней реконструкции |
не проводилась |
|
год последнего капитального ремонта |
1969 |
| длина объекта | 138 м |
| ширина объекта | 5 м |
|
площадь объекта |
690 кв. м |
|
тип конструкции объекта |
Сооружение гравитационного типа в виде монолитной бетонной стенки, установленной на каменную постель, в головной части выполнена наброска из бетонных массивов массой 15 т. |
|
отметка верха сооружения |
+1,845÷2,757 м |
|
подключение объекта к сетям энергоснабжения, водоснабжения, теплоснабжения, канализации и связи |
отсутствует |
|
дополнительное оборудование |
На объекте располагается объект «Портовый огонь», который не сдается в аренду |
![]() |
![]() |
![]() |
![]() |
• первоначальная / балансовая (справедливая) стоимость объекта по состоянию на 31.03.2026 составляет: 267 530 000,00 / 267 530 000,00 руб.;
• размер стоимости права пользования объектом по договору аренды будет установлен на уровне не ниже стоимости, определенной по результатам оценки независимым оценщиком.
|
=> |
извещение о проведении аукциона |
• целевое назначение объекта: защита внутренней акватории от волнения;
• вид государственной регистрации права: хозяйственное ведение;
• дата и номер государственной регистрации права: от 11.02.2007 № 65-65-01/029/2010-113;
• кадастровый номер объекта: 65:14:0000004:772;
• местонахождение объекта: сооружение 1А/7, ул. Флотская, с. Бошняково, муниципальный округ Углегорский, Сахалинская область, Российская Федерация, морской порт Шахтерск;
• основные технические характеристики объекта:
|
год постройки |
1944 |
|
год последней реконструкции |
не проводилась |
|
год последнего капитального ремонта |
1969 |
| длина объекта | 82 м |
| ширина объекта | 36 м |
|
площадь объекта |
2 952 кв. м |
|
тип конструкции объекта |
Вертикальные стенки: со стороны аванковша – ряжи «русской» рубки, со стороны внутреннего ковша – заанкерованный свайный частокол. Пазухи между стенками засыпаны грунтом. Частично заменены ряжи – забита шпунтовая стенка из ШК-1 вдоль входного канала. Возведена шпунтовая оторочка из шпунта Ларсен V со стороны ковша и входного канала |
|
отметка верха сооружения |
+2,100÷3,600 м |
|
подключение объекта к сетям энергоснабжения, водоснабжения, теплоснабжения, канализации и связи |
отсутствует |
|
дополнительное оборудование |
отсутствует |
![]() |
![]() |
![]() |
![]() |
![]() |
![]() |
• первоначальная / балансовая (справедливая) стоимость объекта по состоянию на 31.03.2026 составляет: 9 648 000,00 / 9 648 000,00 руб.;
• размер стоимости права пользования объектом по договору аренды будет установлен на уровне не ниже стоимости, определенной по результатам оценки независимым оценщиком.
|
=> |
извещение о проведении аукциона |
• целевое назначение объекта: складирование грузов;
• вид государственной регистрации права: хозяйственное ведение;
• дата и номер государственной регистрации права: от 11.02.2007 № 65-65-01/029/2010-121;
• кадастровый номер объекта: 65:14:0000004:774;
• местонахождение объекта: сооружение 1А/1, ул. Флотская, с. Бошняково, муниципальный округ Углегорский, Сахалинская область, Российская Федерация, морской порт Шахтерск;
• основные технические характеристики объекта:
|
год постройки |
1964 |
|
год последней реконструкции |
не проводилась |
|
год последнего капитального ремонта |
не проводился |
|
длина объекта часть 1 часть 2 |
75 м 50 м |
|
ширина объекта часть 1 часть 2 |
12 м 30 м |
|
площадь объекта, всего |
2 400 кв. м |
|
тип конструкции объекта |
Объект представляет собой два забетонированных участка. |
|
подключение объекта к сетям энергоснабжения, водоснабжения, теплоснабжения, канализации и связи |
отсутствует |
|
дополнительное оборудование на объекте |
отсутствует |
![]() |
![]() |
![]() |
![]() |
![]() |
• первоначальная / балансовая (справедливая) стоимость объекта по состоянию на 31.03.2026 составляет: 23 911 000,00 / 23 911 000,00 руб.;
• размер стоимости права пользования объектом по договору аренды будет установлен на уровне не ниже стоимости, определенной по результатам оценки независимым оценщиком.
Морской терминал Красногорск
|
|
|
• целевое назначение объекта: обработка лесных и генгрузов;
• вид государственной регистрации права: хозяйственное ведение;
• дата и номер государственной регистрации права: от 05.11.2008 № 65-65-08/004/2008-385;
• кадастровый номер объекта: 65:12:0000008:781;
• местонахождение объекта: сооружение 35/1, ул. Победы, с. Красногорск, городской округ Томаринский, Сахалинская область, Российская Федерация, морской порт Шахтерск;
• основные технические характеристики объекта:
|
год постройки |
1959 |
|
год последней реконструкции |
не проводилась |
|
год последнего капитального ремонта |
1983 |
| длина объекта | 128 м |
| ширина объекта | 15,30 м |
|
площадь объекта |
1 958,4 кв. м |
|
тип конструкции объекта |
Вертикальная стенка, больверк из деревянного свайного частокола Ø240÷280 мм. |
|
проектная глубина у кордона причала |
3,50 м |
|
фактическая глубина у кордона причала |
от 1 до 1,3 |
|
подключение объекта к сетям энергоснабжения |
Подключение к сетям электроснабжения ПАО «Сахалинэнерго» |
|
подключение объекта к сетям водоснабжения, теплоснабжения, канализации и связи |
отсутствует |
|
дополнительное оборудование на причале |
Крановые колонки электропитания типа ЭПН -2 -380 в количестве 3 ед. |
![]() |
![]() |
![]() |
![]() |
![]() |
![]() |
• первоначальная / балансовая (справедливая) стоимость объекта по состоянию на 31.03.2026 составляет: 1 549 289,00/1 549 289,00 руб.;
• размер стоимости права пользования объектом по договору аренды будет установлен на уровне не ниже стоимости, определенной по результатам оценки независимым оценщиком.
|
|
|
• целевое назначение объекта: переработка навалочных грузов;
• вид государственной регистрации права: хозяйственное ведение;
• дата и номер государственной регистрации права: от 05.11.2008 № 65-65-08/004/2008-386;
• кадастровый номер объекта: 65:12:0000008:778;
• местонахождение объекта: сооружение 35/2, ул. Победы, с. Красногорск, городской округ Томаринский, Сахалинская область, Российская Федерация, морской порт Шахтерск;
• основные технические характеристики объекта:
|
год постройки |
1956 |
|
год последней реконструкции |
не проводилась |
|
год последнего капитального ремонта |
1984 |
| длина объекта | 160,15 м |
| ширина объекта | 15,65 м |
|
площадь объекта |
2 506,4 кв. м |
|
тип конструкции объекта |
Вертикальная стенка, больверк из деревянного свайного частокола Ø240÷280 мм. |
|
проектная глубина у кордона причала |
3,50 м |
|
фактическая глубина у кордона причала |
от 1,5 до 2,1 м |
|
подключение объекта к сетям энергоснабжения |
Подключение к сетям электроснабжения ПАО «Сахалинэнерго» |
|
подключение объекта к сетям водоснабжения, теплоснабжения, канализации и связи |
отсутствует |
|
дополнительное оборудование на причале |
Крановые колонки электропитания типа ЭПН -2 -380 в количестве 5 ед. |
![]() |
![]() |
![]() |
![]() |
![]() |
• первоначальная / балансовая (справедливая) стоимость объекта по состоянию на 31.03.2026 составляет: 1 537 230,00/1 537 230,00 руб.;
• размер стоимости права пользования объектом по договору аренды будет установлен на уровне не ниже стоимости, определенной по результатам оценки независимым оценщиком.
|
|
|
• целевое назначение объекта: переработка генгрузов;
• вид государственной регистрации права: хозяйственное ведение;
• дата и номер государственной регистрации права: от 05.11.2008 № 65-65-08/004/2008-387;
• кадастровый номер объекта: 65:12:0000008:779;
• местонахождение объекта: сооружение 35/3, ул. Победы, с. Красногорск, городской округ Томаринский, Сахалинская область, Российская Федерация, морской порт Шахтерск;
• основные технические характеристики объекта:
|
год постройки |
1955 |
|
год последней реконструкции |
не проводилась |
|
год последнего капитального ремонта |
1985 |
| длина объекта | 128,5 м |
| ширина объекта | 16,25 м |
|
площадь объекта |
2 088,1 кв. м |
|
тип конструкции объекта |
Вертикальная стенка, больверк из деревянного свайного частокола Ø200÷240 мм. |
|
проектная глубина у кордона причала |
3,50 м |
|
фактическая глубина у кордона причала |
от 2,1 до 2,5 м |
|
подключение объекта к сетям энергоснабжения |
Подключение к сетям электроснабжения ПАО «Сахалинэнерго» |
|
подключение объекта к сетям водоснабжения, теплоснабжения, канализации и связи |
отсутствует |
|
дополнительное оборудование на причале |
Крановые колонки электропитания типа ЭПН -2 -380 в количестве 2 ед. |
![]() |
![]() |
![]() |
![]() |
![]() |
![]() |
• первоначальная / балансовая (справедливая) стоимость объекта по состоянию на 31.03.2026 составляет: 1 873 445,00 / 1 873 445,00 руб.;
• размер стоимости права пользования объектом по договору аренды будет установлен на уровне не ниже стоимости, определенной по результатам оценки независимым оценщиком.
|
|
|
• целевое назначение объекта: переработка лесных и генгрузов;
• вид государственной регистрации права: хозяйственное ведение;
• дата и номер государственной регистрации права: от 05.11.2008 № 65-65-08/004/2008-388;
• кадастровый номер объекта: 65:12:0000008:777;
• местонахождение объекта: сооружение 35/4, ул. Победы, с. Красногорск, городской округ Томаринский, Сахалинская область, Российская Федерация, морской порт Шахтерск;
• основные технические характеристики объекта:
|
год постройки |
1956 |
|
год последней реконструкции |
не проводилась |
|
год последнего капитального ремонта |
1986 |
| длина объекта | 85 м |
| ширина объекта | 5 м |
|
площадь объекта |
425 кв. м |
|
тип конструкции объекта |
Вертикальная стенка, больверк из деревянного свайного частокола Ø240÷280 мм. |
|
проектная глубина у кордона причала |
3,50 м |
|
фактическая глубина у кордона причала |
от 1,5 до 1,9 м |
|
подключение объекта к сетям энергоснабжения |
Подключение к сетям электроснабжения ПАО «Сахалинэнерго» |
|
подключение объекта к сетям водоснабжения, теплоснабжения, канализации и связи |
отсутствует |
|
дополнительное оборудование на причале |
Крановые колонки электропитания типа ЭПН -2 -380 в количестве 2 ед. |
![]() |
![]() |
![]() |
![]() |
![]() |
• первоначальная / балансовая (справедливая) стоимость объекта по состоянию на 31.03.2026 составляет: 1 522 248,00 / 1 522 248,00 руб.;
• размер стоимости права пользования объектом по договору аренды будет установлен на уровне не ниже стоимости, определенной по результатам оценки независимым оценщиком.
Морской терминал Углегорск
• целевое назначение объекта: подъем судов для ремонта;
• свидетельство о государственной регистрации права хозяйственного ведения ФГУП «Росморпорт» от 11.02.2007 серия 65 АВ № 037927;
• местонахождение объекта: ул. Приморская, д. 11, Углегорск, Сахалинская область, морской порт Шахтерск (морской терминал Углегорск);
• технические характеристики объекта:
|
год постройки |
1925 |
|
год последней реконструкции |
1961 |
|
площадь объекта |
3 258,8 кв. м |
|
ширина объекта |
25 м |
|
длина наклонной части |
50 м |
|
длина горизонтальной части |
48,5 м |
|
длина объекта |
173 м |
|
проектная глубина дна на пороге |
2,6 м |
|
фактическая глубина дна на пороге |
1,2 м |
|
масса поднимаемых объектов |
300 тонн |
|
|
|
|
|
|

• первоначальная / балансовая (справедливая) стоимость объекта по состоянию на 31.03.2026 составляет: 49 290,53/49 290,53 руб.;
• размер стоимости права пользования объектом по договору аренды будет установлен на уровне не ниже стоимости, определенной по результатам оценки независимым оценщиком.
Для заключения договора аренды потенциальному арендатору необходимо направить в Сахалинский филиал ФГУП «Росморпорт» по адресу: 694020, Сахалинская область, г. Корсаков, ул. Портовая, д. 13/2, письмо с заявкой на имя Генерального директора ФГУП «Росморпорт» о намерении заключить договор аренды с указанием интересующего объекта инфраструктуры.
Получить дополнительную информацию о порядке сдачи в аренду имущества Сахалинского филиала можно в:
- секторе по управлению государственным имуществом Сахалинского филиала ФГУП «Росморпорт» по телефону: +7 (42435) 436-97 (с понедельника по пятницу с 8:30 до 17:30 по местному времени);
- отделе аренды центрального аппарата ФГУП «Росморпорт» по телефону: +7 (495) 626-14-62 (с понедельника по пятницу с 9:00 до 18:00 по московскому времени).
С подробной информацией о порядке сдачи в аренду недвижимого имущества ФГУП «Росморпорт» можно ознакомиться в разделе «Аренда имущества предприятия».




























































































