Сведения о недвижимом имуществе Петропавловского филиала, которое может быть сдано в аренду
|
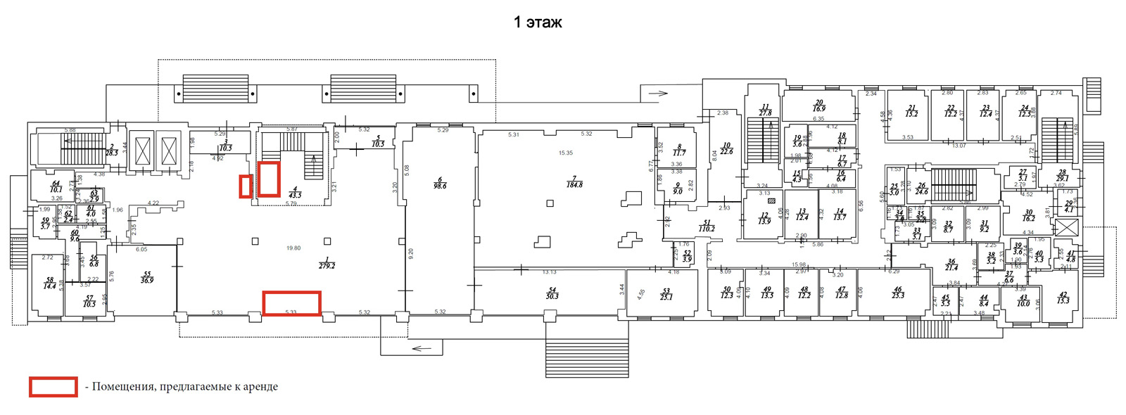
Нежилые помещения в административном здании «Морской вокзал» (части объектов) |
• целевое назначение объекта: нежилые;
• вид государственной регистрации права: хозяйственное ведение;
• дата и номер государственной регистрации права: 01.06.2017 № 41:01:0010121:1744-41/001/2017-4;
• кадастровый номер объекта: 41:01:0010121:1744;
• местонахождение объекта: Вокзальная площадь, д. 1/1, г. Петропавловск-Камчатский, Камчатский край, Российская Федерация, морской порт Петропавловск-Камчатский;
• технические характеристики объекта:
|
год постройки административного здания, в котором располагается объект |
2016 |
|
год последней реконструкции административного здания |
не проводилась |
|
год последнего капитального ремонта |
не проводился |
|
этажность административного здания, в котором располагаются сдаваемые в аренду помещения |
6 этажей, а также 1 подземный этаж |
|
этажи, на которых располагаются сдаваемые в аренду помещения |
1-й этаж |
|
общая площадь административного здания, в котором располагаются объекты, подлежащие к сдаче в аренду |
8 535,0 кв. м |
|
площадь помещений, подлежащих к сдаче в аренду, из них:
1-й этаж часть помещения № 1
часть помещения № 1 часть помещения № 4 |
21 кв. м
3 кв. м 10 кв. м 8 кв. м |
|
высота помещений
1-й этаж высота помещений без отделки высота помещений до подвесного потолка |
3,95 м 3,20 м |
|
техническое описание помещений |
Стены: железобетонные монолитные; Облицовка стен и колонн: керамогранитная плитка; Покрытие пола: гранитные плиты; Потолки: подвесные типа «Армстронг»; Окна: алюминиевые блоки, двухкамерные стеклопакеты Двери: алюминиевые с глухим заполнением или с частичным остеклением |
|
энергоснабжение объекта |
Централизованное энергоснабжение от городских электросетей Напряжение 220 В. Максимальная подключаемая мощность: - 360 кВт (здания «Морской вокзал») - не более 5 кВт (в одном помещении) |
|
теплоснабжение объекта |
Централизованное теплоснабжение |
|
водоснабжение и канализация объекта |
Централизованное водоснабжение. Централизованная канализация |
|
наличие подключения к телефонной связи |
Имеется подключение к городским телефонным сетям |
|
дополнительное оборудование |
Отсутствует |
|
|
|
|
||
• балансовая (остаточная) стоимость административного здания «Морской вокзал» по состоянию на 31.03.2025 составляет: 583 344 370,37 (255 987 258,32) руб.;
• размер рыночной стоимости права пользования нежилыми помещениями в административном здании по договору аренды объекта будет установлен на уровне не ниже стоимости, определенной по результатам оценки независимым оценщиком.
Для заключения договора аренды потенциальному арендатору необходимо направить в Петропавловский филиал ФГУП «Росморпорт» по адресу: ул. Сапун-Гора, д. 5, Петропавловск-Камчатский, Камчатский край, Россия, 683010, письмо с заявкой на имя Генерального директора ФГУП «Росморпорт» о намерении заключить договор аренды с указанием интересующего объекта инфраструктуры.
Получить дополнительную информацию о порядке сдачи в аренду имущества Петропавловского филиала можно:
• в отделе технического обеспечения модернизации и развития портовой инфраструктуры Петропавловского филиала ФГУП «Росморпорт» по телефону +7 (4152) 21-29-27 добавочный 112 (с понедельника по пятницу с 8:30 до 17:00 по местному времени);
• в отделе аренды центрального аппарата ФГУП «Росморпорт» по телефону: +7 (495) 626-18-33 (с понедельника по пятницу с 9:00 до 18:00 по московскому времени).
С подробной информацией о порядке сдачи в аренду недвижимого имущества ФГУП «Росморпорт» можно ознакомиться в разделе «Аренда имущества предприятия».




